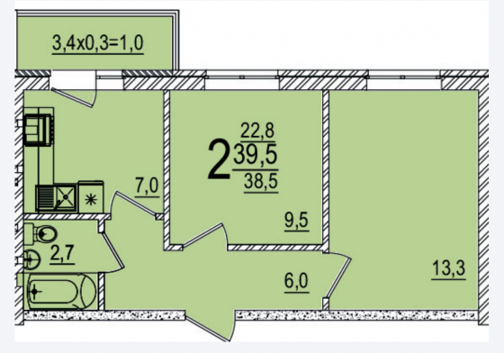
Продается 2-х комн. новостройка, 39.5 кв.м., 5/5 эт
| Стоимость | 5 016 000 |
|---|---|
| Название ЖК | Дарград |
| Стадия строительства | дом построен, но не сдан |
| Год постройки | 2023 |
| Площадь, кв.м. | 39.5 |
| Жилая площадь | 23 |
| Площадь кухни, кв.м. | 7 |
| Этаж | 5 |
| Этажность | 5 |
| Комнат в квартире | 2 |
| Материал стен | Блочный |
| Тип сделки новостройки | первичная продажа |
| Видно только агентам - Циан | Нет |
| Можно курить | Есть |
| Разрешены вечеринки | Есть |
| Отчетные документы | Есть |
| Право собственности | Посредник |
| Узаконена ли планировка | Есть |
| Есть ли право собственности | Есть |
| Населенный пункт | аул Новая Адыгея |
|---|---|
| Улица | шоссе Тургеневское |
| Номер дома | 33/1 |
Жилой комплекс “ДарГрад” расположен на Тургеневском шоссе, в хорошо обжитом и развитом районе Новая Адыгея. Характеристики домов, планировка и метраж квартир Комплекс состоит из монолитно-кирпичных пятиэтажных домов комфорт-класса. В первой очереди будет сразу десять домов, целиком же в рамках проекта запланировано возвести 52 дома. Застройщик предлагает различные по планировкам и метражу квартиры — от модных небольших студий до просторных трехкомнатных апартаментов. Покупатели могут выбрать студии площадью в 23 кв.м, однокомнатные квартиры — в 26 -36 кв.м, двухкомнатные — в 40,5-54,5 кв.м, и трехкомнатные — в 61,2 кв.м. Квартиры сдаются с предчистовой отделкой, которая включает: разводку электричества, выводы под сантехнику, выравнивание стен под обои, установку качественных металлопластиковых стеклопакетов, входную металлическую дверь. Инфраструктура и транспортная доступность На придомовой территории планируется благоустройство и озеленение. Будут оборудованы игровые и спортивные площадки. Для взрослых — рекреационные и прогулочные зоны. В целях дополнительной безопасности жильцов по периметру территории ЖК "ДарГрад" установят качественное освещение. Предусмотрена придомовая парковка на 20 автомобилей для владельцев квартир в первой очереди. Жилой комплекс расположен вблизи удобной транспортной развязки. Неподалеку находятся остановки общественного транспорта, регулярно курсируют рейсовые автобусы и маршрутные такси. Рядом с новыми домами находится ТРК «МЕГА-Адыгея».Инфраструктура района хорошо развита — в шаговой доступности множество магазинов и социально-культурных учреждений. Неподалеку от ЖК "ДарГрад", в поселке Яблоновский, находятся: поликлиника, магазины, отделения банков, кафе и рестораны, школа Непосредственно на территории ЖК будет возводиться детский сад.

















